La particolarità di essere nella comodità del paese godendo delle delizie della campagna.
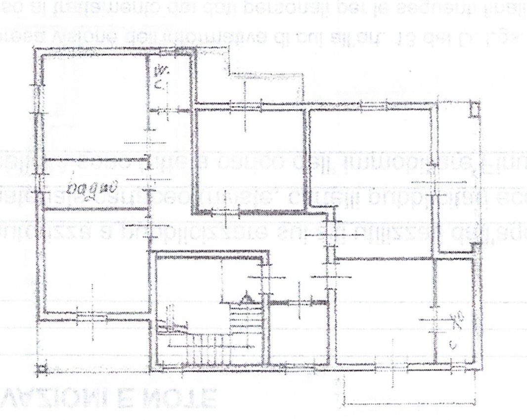
In villa bifamiliare ampio e luminoso appartamento di circa 150 mq, pari al nuovo, posto al secondo piano con ingresso indipendente. L'immobile è stato completamente ristrutturato nel 2018 con materiali di alta qualità, garantendo un ambiente moderno e accogliente. All'ingresso, un grande disimpegno ti accoglie, conducendo a un soggiorno doppio con terrazzo, perfetto per momenti di relax all'aria aperta. La sala da pranzo, dotata di camino e cucinotto, è ideale per cene in famiglia.
La zona notte è ben separata e offre 3 camere doppie, di cui due con accesso a terrazzi privati. I due bagni, uno con vasca e l’altro con doccia, sono pensati per garantire il massimo comfort. Non mancano spazi utili come un garage finestrato di circa 45 mq e comodi magazzini e cantina di circa 40 mq al piano seminterrato.
Il terreno privato di 460 mq è un vero gioiello, con piante di olivo e spazio sufficiente per un orto o un giardino. L'appartamento è dotato di stufa a pellet di nuova generazione nella zona notte, caldaia a gas nuova e aria condizionata nella zona giorno. Ogni finestra è protetta da zanzariere nuove e tutte le terrazze sono dotate di tende da sole. E'stato installato anche un nuovo addolcitore di alta tecnologia.
Questa proprietà è perfetta per famiglie numerose o per chi desidera ampi spazi. Non perdere l'occasione di vivere in un ambiente confortevole e ben collegato! Contattaci per ulteriori informazioni e per prenotare una visita.